こんにちは!大原工務店新人営業の武田です!
最近日の出の時間が遅くなってきましたね~~
朝起きるのがつらくなってきました、、、
遅刻には気を付けて毎日早寝します!!
さて今回は郡山市富田町にて完成したとってもかっこいい平屋の
完成見学会をご紹介します!!

一番最初に目に入るのは、黒い外壁が印象的な箱型フォルムです!
シンプルな形ながら、シャープでモダンな印象はまさに「カッコいい」の一言。
写真を見ているだけで、スタイリッシュな暮らしが想像できますよね~
この黒い外観は、光の当たり方で表情が変わり、
昼はクールに、夕方は落ち着いた雰囲気に見えるのが素敵です!!

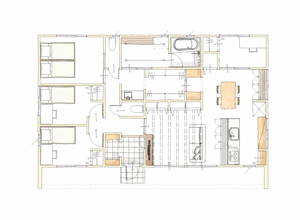
間取りを見ても無駄がないんです!
28.05坪(約92.74㎡)というコンパクトなサイズながら、空間の使い方がとても上手。
部屋数だけに目を向けるのではなく、
「どう心地よく暮らせるか」という設計さんのこだわりが詰まってます・・・
余白をうまく取り入れた空間づくりは、
まさに“シンプルだけど豊か”な暮らし方そのものですよね~~

こちら木の梁が印象的なダイニングキッチン!
白を基調としたシンプルなキッチンに木の素材が加わり、
落ち着きがありながらもとてもかっこいい空間です!!
ダイニングとキッチンが近く、配膳や片付けがしやすいのも嬉しいポイントなんです!
毎日の快適な暮らしが想像できますね!

次はこちらのお部屋です~
カウンター付きで、書斎としてもクローゼットとしても使える多目的な空間。
仕事や読書などの作業スペースとして使えるのはもちろん、
収納をまとめることで部屋全体がすっきり整っていきます!(^^)!
暮らし方やライフスタイルに合わせて、自由に使い方を変えられるのも魅力です!!
今回紹介させていただいた平屋の見学会がなんと。。。
実際に見学できるんです!!
これからお家づくりを考えているけど何から始めたらいいのかわからないって方、
平屋にご興味がある方、どんな方も一度実際に見てみてください!
詳しくは→こちらから!!
日付:12月27.28 1月3.4日

先日工務の加藤とご飯行ってきました!
本宮市にある五百川食堂です!
何回も横は通っていたのですが行ったことがなかったんです!
とってもおいしかったです、、
チャレンジしてみるものですね!
皆様もぜひ行ってみてください!!