見学会
NEW
田村市船引町|スキップフロアのある家 見学会 11/15~24【夜見学OK】
スキップフロアがつなぐ 心地よい暮らし
>> 完 成 見 学 会 <<
日時:11.15(土) – 11.24(月)
①10時~②13時~③15時30分~④18時~
今回は夜も開催!18時~の夜見学で、照明の心地よさを体感してください。
場所:田村市船引町
この家を建てたご家族の想い

見どころ 3選

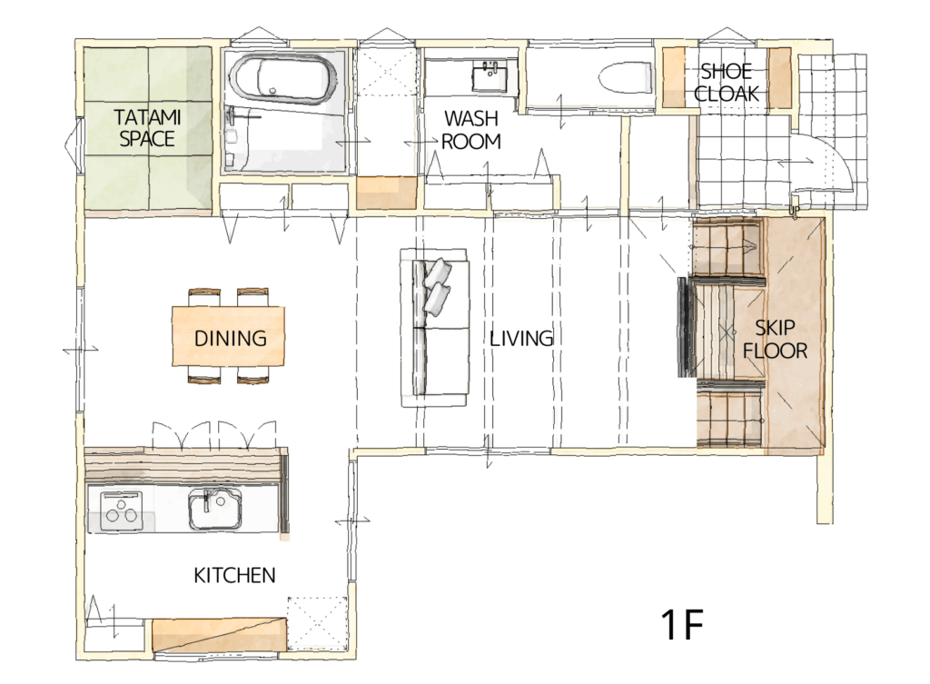
①家族がつながるスキップフロア
LDKを見渡せるスキップフロアは、勉強やリモートワークにも◎。声が届くちょうどいい距離感で、家族のつながりを感じられる空間です。

②洗面と脱衣を分けたスマート動線
朝の支度もお風呂上がりもストレスなし。洗面と脱衣を分けることで、同時に使っても快適。来客時も気兼ねなく使えます。

③2階ファミクロで片付け上手に
家族みんなの衣類を一か所にまとめたファミリークローゼット。洗濯動線が短く、片付けがラクになる工夫です。
間取り


- 延床面積
- 1F : 63.55 ㎡
2F : 51.34 ㎡
合計:114.89 ㎡(34.75坪) - スペック
- 長期優良住宅
耐震等級3(最高等級)
見学会に参加した方の声
無理な営業や押し売りは一切ありません。

大原工務店の家づくりのこだわりを説明しながらご案内いたします。間取りのこと、土地のこと、お金のこと。。。何でもお気軽にお話しください。
お子さまもぜひお越しください!

小さなお子さまも楽しめるよう、見学会場にキッズスペースを設けています。スタッフが遊ばせていただきますのでゆっくりご覧いただけます。
今だけ!WEB予約キャンペーン!




イベント詳細
- 開催日程
- 2025.11.15(土)〜11.24(月)
- 開催時間
- 10:00~19:00


